Estepona

Te koop Vrijstaande Villa Costa Del Sol Estepona € 795.000,-

Ref.no: RSOR5350456
Price: € 795.000,-

1-7980e48d732b6fc85c14b43b94d2aa54.jpg

Te koop Vrijstaande Villa Costa Del Sol Estepona € 795.000,-

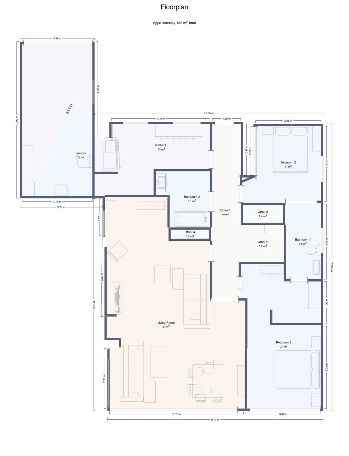
Bedrooms5
Salles de bains3
Superficie du terrain488m²
Living area327m²
Poolyes
Gardenyes
Parkingyes
Built year1973
Instelling: strandzijde, dicht bij zee, urbanisatie
Orientatie: Zuid
Staat: uitstekend
Zwembad: privé
Klimaatregeling: airconditioning, warme airconditioning, koude airconditioning
Uitzicht: zee, bergen, tuin, zwembad
Caractéristiques : Armoires encastrées, Près des transports, Terrasse privée, Buanderie, Salle de bains attenante, Double vitrage
Meubels: optioneel
Keuken: volledig ingericht
Tuin: privé
Parkeergarage
Hulpprogramma's: elektriciteit, drinkwater
Categorie: Golf, Vakantiehuizen, Wederverkoop
Ref.no: RSOR5350456
Price: € 795.000,-

Plus d'information ›››
Te koop Vrijstaande Villa Costa Del Sol Estepona € 795.000,-

Cette villa individuelle d'exception offre une opportunité de rénovation unique pour créer une résidence de luxe sur mesure dans le magnifique quartier de Buenas Noches. Située à l'ouest d'Estepona et à quelques pas de la plage, cette propriété allie un cadre de vie privilégié et un excellent investissement dans l'un des emplacements les plus recherchés de la Costa del Sol. Bénéficiant d'une vue panoramique imprenable sur la mer, la villa comprend cinq chambres et trois salles de bains, ainsi qu'un appartement indépendant avec cuisine, salon et salle de bains privatives – idéal pour recevoir famille et amis ou générer un revenu locatif intéressant.
La résidence principale s'étend sur plusieurs niveaux et comprend une cuisine lumineuse et entièrement équipée, un accès au garage et un espace de vie ouvert avec salle à manger donnant sur une vaste terrasse surplombant la mer Méditerranée. Trois chambres se trouvent à ce niveau, dont une suite parentale avec dressing, salle de bains privative et accès direct à la terrasse.
Au rez-de-chaussée, un espace bureau modulable s'ouvre sur l'appartement d'invités, qui donne accès à un vaste jardin avec piscine privée, espace barbecue et plusieurs terrasses ensoleillées, idéales pour profiter du plein air et d'un luxe décontracté. Des rangements supplémentaires et un espace polyvalent offrent de nombreuses possibilités : salle de sport, studio ou chambre d'amis supplémentaire.

Cette villa représente une opportunité exceptionnelle pour profiter pleinement de la vie côtière : une résidence familiale paisible, un lieu de vacances luxueux ou un investissement locatif rentable, le tout en un seul endroit. Ne manquez pas cette chance rare d'acquérir une vue imprenable sur la mer et un bien d'une valeur à long terme dans l'un des quartiers les plus prisés d'Estepona.

Alternatives

BOHACP1420_4722_V1_3324.jpg

Te koop Halfvrijstaand Costa Del Sol Estepona € 730.000,-

Price € 730.000,-
Plus d'information
BOHACP1222_3010_V1_8873.jpg

Te koop Villa Costa Del Sol Mijas Golf € 895.000,-

Price € 895.000,-
Plus d'information
BOHAAP4817_26315_V1_DED1.jpg

Te koop Villa Costa Del Sol Mijas Costa € 839.000,-

Price € 839.000,-
Plus d'information
1-7980e48d732b6fc85c14b43b94d2aa54.jpg

Te koop Vrijstaande Villa Costa Del Sol Estepona € 700.000,-

Price € 700.000,-
Plus d'information
Disclaimer | Links
Casa Espana %lng_cookie_notice% %lng_close%
x