El Coto

Te koop Vrijstaande Villa Costa Del Sol El Coto € 980.000,-

Ref.no: RSOR5228737
Price: € 980.000,-

1-7980e48d732b6fc85c14b43b94d2aa54.jpg

Te koop Vrijstaande Villa Costa Del Sol El Coto € 980.000,-

Bedrooms4
Salles de bains3
Living area447m²
Poolyes
Gardenyes
Parkingyes
Built year1989
Setting: Suburban, Close To Shops, Close To Town, Close To Schools, Urbanisation
Condition: Excellent, Good
Pool: Private
Climate Control: Air Conditioning
Views: Garden
Features: Covered Terrace, Fitted Wardrobes, Near Transport, Private Terrace, Satellite TV, WiFi, Storage Room, Utility Room, Ensuite Bathroom, Barbeque, Double Glazing, Courtesy Bus, Staff Accommodation, Basement, Fiber Optic
Furniture: Part Furnished
Kitchen: Partially Fitted
Garden: Private
Security: Alarm System, 24 Hour Security
Parking: Underground
Utilities: Electricity, Drinkable Water
Category: Luxury
Ref.no: RSOR5228737
Price: € 980.000,-

Plus d'information ›››
Te koop Vrijstaande Villa Costa Del Sol El Coto € 980.000,-

Detached villa in El Coto, Mijas – Style, privacy and a privileged location

Located in one of the most exclusive residential areas of Mijas Costa, this magnificent villa offers a peaceful and family-friendly environment, just a few minutes from the centre of Fuengirola, renowned schools, green areas and all essential amenities.
An ideal property for those seeking comfort, space and quality of life on the Costa del Sol.

Main features
• Type: Detached house or villa
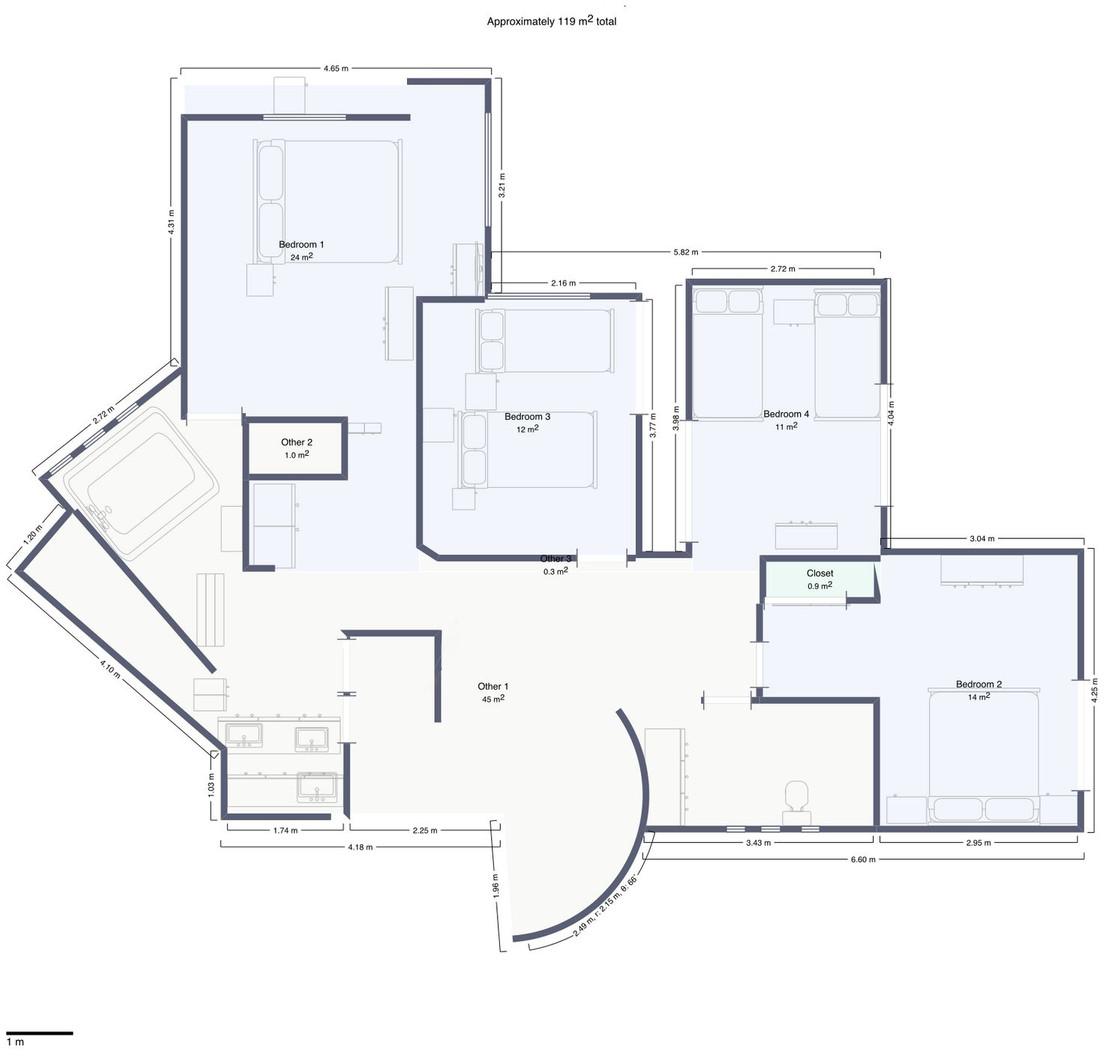
• Built area: 447 m²
• Usable area: 400 m²
• Plot: 800 m²
• Year of construction: 1989
• Condition: Excellent condition

Interior layout
• 4 spacious bedrooms, all with natural light and fitted wardrobes.
• 3 full bathrooms, one of which is en suite to the master bedroom.
• Large living-dining room with high ceilings, fireplace and direct access to the terrace and garden.
• Library or reading room, ideal as an office or work area.
• Separate, fully equipped kitchen with modern appliances, dining area and pantry.
• Storage room and laundry area.

Exterior and leisure areas
• Private garden with established vegetation and automatic irrigation.
• Private swimming pool with complete privacy, perfect for enjoying the Mediterranean climate.
• Large terrace and barbecue area, ideal for family gatherings or outdoor dinners.
• Private garage with space for several vehicles.

Facilities and extras
• Air conditioning.
• High-quality flooring.
• Large windows that provide natural light throughout the day.
• Sunny orientation.
• Property ready to move into.

Location
Located in El Coto (Mijas), a residential area highly valued for its tranquillity and proximity to:
• Schools, supermarkets, pharmacies and restaurants.
• Quick access to the A-7 motorway and AP-7 motorway.
• Only 5 minutes by car from the centre of Fuengirola and its beaches.
• Close to golf courses, bus and train stations.


If you are looking for a spacious villa with privacy in one of the best areas of Mijas, this is your opportunity.
Contact us today for more information or to arrange a private viewing.


Alternatives

1-7980e48d732b6fc85c14b43b94d2aa54.jpg

Te koop Vrijstaande Villa Costa Del Sol Estepona € 999.999,-

Price € 999.999,-
Plus d'information
1-7980e48d732b6fc85c14b43b94d2aa54.jpg

Te koop Vrijstaande Villa Costa Del Sol Cerros Del Aguila € 950.000,-

Price € 950.000,-
Plus d'information
1-7980e48d732b6fc85c14b43b94d2aa54.jpg

Te koop Vrijstaande Villa Costa Del Sol Sierrezuela € 899.000,-

Price € 899.000,-
Plus d'information
1-7980e48d732b6fc85c14b43b94d2aa54.jpg

Te koop Vrijstaande Villa Costa Del Sol Benalmadena € 975.000,-

Price € 975.000,-
Plus d'information
Disclaimer | Links
Casa Espana %lng_cookie_notice% %lng_close%
x