Los Monteros

Te koop Residential Plot Costa Del Sol Los Monteros € 690.000,-

Ref.no: RSOR5046775
Price: € 690.000,-

1-7980e48d732b6fc85c14b43b94d2aa54.jpg

Te koop Residential Plot Costa Del Sol Los Monteros € 690.000,-

Bedrooms3
Salles de bains2
Superficie du terrain1509m²
Poolyes
Gardenyes
Parkingno
Built year1980
Pool: Communal
Climate Control: Central Heating
Views: Sea
Features: Wood Flooring
Furniture: Not Furnished
Utilities: Drinkable Water
Ref.no: RSOR5046775
Price: € 690.000,-

Plus d'information ›››
Te koop Residential Plot Costa Del Sol Los Monteros € 690.000,-

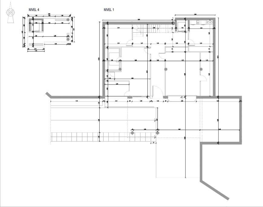
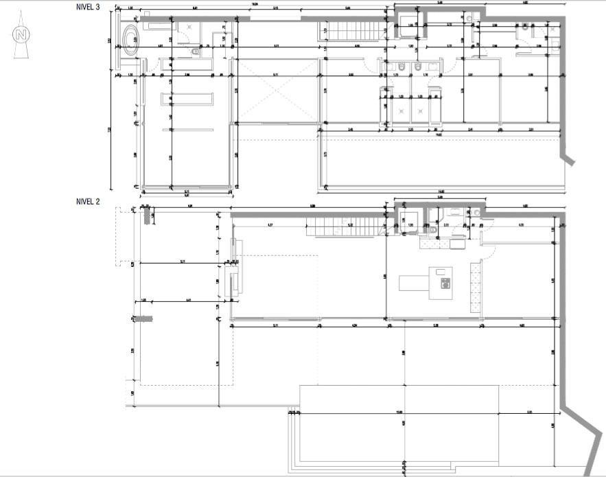
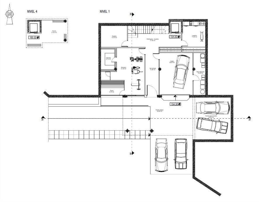
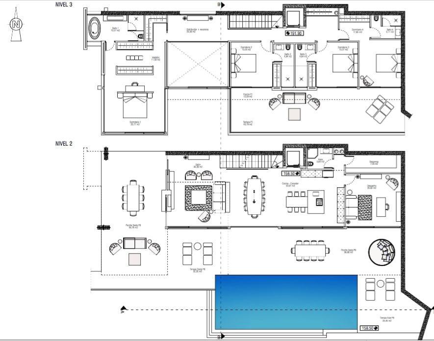
Land for sale in LOS ALTOS DE LOS MONTEROS urbanization, MARBELLA (MÁLAGA) with unobstructed views of the sea along with an attractive 4-storey single-family housing project, the building permit has been issued. The construction project is included in the price. The construction project has 5 parking spaces, 3 in the garage and 2 for visits with sea views. In the basement we have a large panoramic sauna (sea views), gym and Turkish bath. Large storage room, laundry room and staircase that connects the 4 floors and elevator. On the ground floor, a spacious living room with double height and led fireplace, kitchen with American island, large pantry, guest bathroom and office. On the second floor 4 bedrooms each with bathroom, the master room with walking closet and bathtub with sea views., closets in the hallway. On the top floor, a large solar where you can place barbecue and rest facilities. It has 3 gardens, each one can be thematic.
Use: Residential
Subtype: Urban Land
Area: 1,509 m²
Buildable area: 458 m²

Alternatives

1-7980e48d732b6fc85c14b43b94d2aa54.jpg

Te koop Residential Plot Costa Del Sol Marbella € 650.000,-

Price € 650.000,-
Plus d'information
1-7980e48d732b6fc85c14b43b94d2aa54.jpg

Te koop Residential Plot Costa Del Sol Sotogrande € 590.000,-

Price € 590.000,-
Plus d'information
1-7980e48d732b6fc85c14b43b94d2aa54.jpg

Te koop Residential Plot Costa Del Sol Benahavís € 750.000,-

Price € 750.000,-
Plus d'information
1-7980e48d732b6fc85c14b43b94d2aa54.jpg

Te koop Residential Plot Costa Del Sol Arroyo De La Miel € 660.000,-

Price € 660.000,-
Plus d'information
Disclaimer | Links
Casa Espana %lng_cookie_notice% %lng_close%
x