Estepona

Te koop Half vrijstaand huis Costa Del Sol Estepona € 775.000,-

Ref.no: RSOR4808620
Price: € 775.000,-

1-7980e48d732b6fc85c14b43b94d2aa54.jpg

Te koop Half vrijstaand huis Costa Del Sol Estepona € 775.000,-

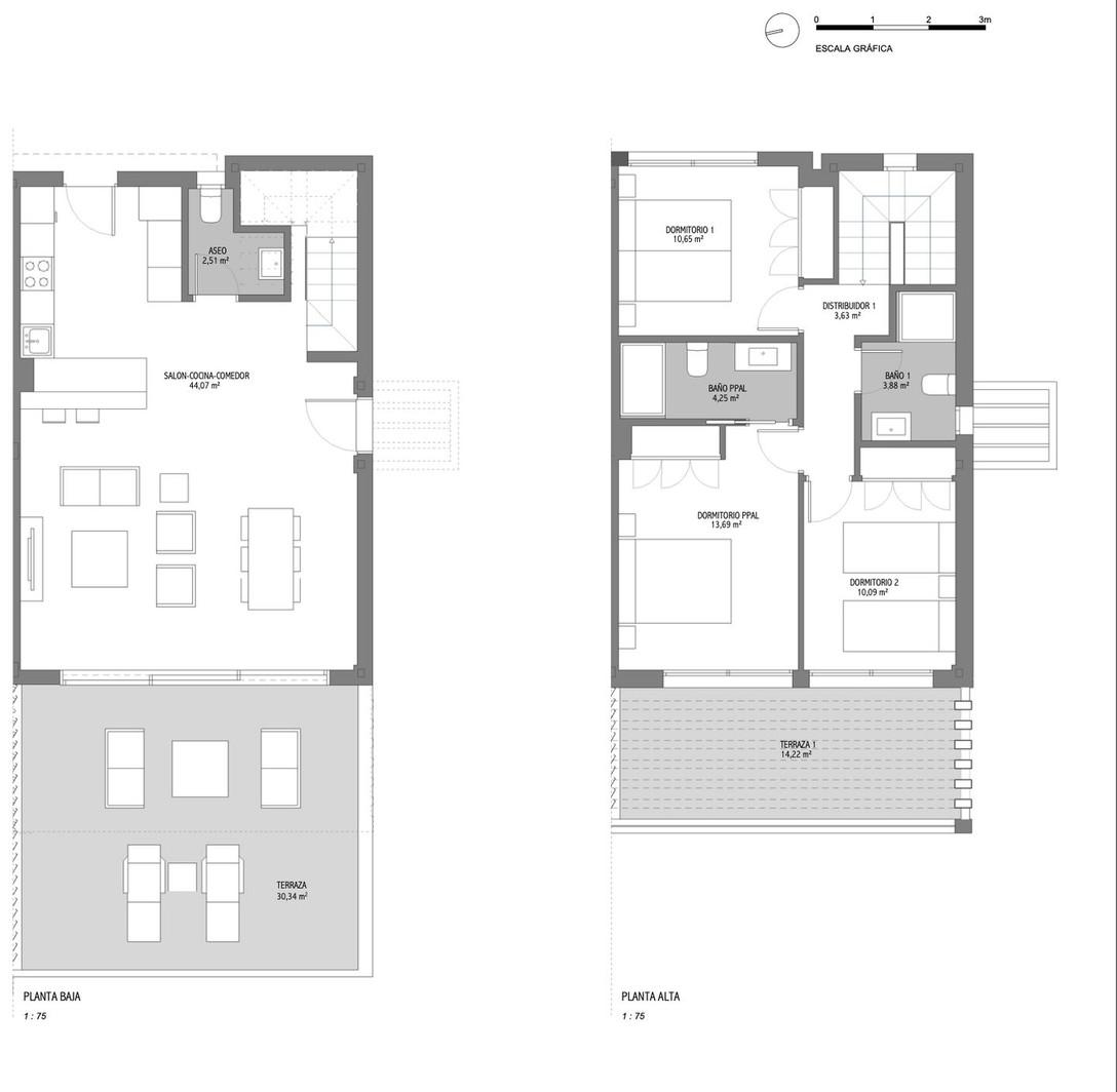
Bedrooms3
Salles de bains2
Living area131m²
Poolyes
Gardenyes
Parkingyes
Built year2024
Setting: Close To Shops, Close To Schools, Urbanisation
Orientation: South East
Condition: Excellent
Pool: Communal
Climate Control: Air Conditioning
Views: Forest
Kitchen: Fully Fitted
Garden: Communal, Private
Security: Gated Complex
Parking: Private
Ref.no: RSOR4808620
Price: € 775.000,-

Plus d'information ›››
Te koop Half vrijstaand huis Costa Del Sol Estepona € 775.000,-

*BRAND NEW RESALE SEMI-DETACHED VILLA IN ATALAYA, ESTEPONA*

Unique Opportunity! A newly built semi-detached villa with 3 bedrooms in the prestigious Serene Atalaya urbanization of Estepona. This west-facing home features a spacious outdoor area perfect for enjoying the sun year-round, making it ideal for families and outdoor enthusiasts.

The location is unbeatable: right next to Atalaya Golf & Country Club and El Campanario Clubhouse, and just minutes from shopping areas and less than 10 minutes drive to Puerto Banús. Living here means being close to the best services and leisure options on the Costa del Sol, while enjoying the peace and exclusivity of a prime setting.

The villa has been constructed with high-quality materials from the renowned brand GUNNI & TRENTINO, ensuring durability, style, and comfort in every detail. Additionally, this property offers excellent potential for value appreciation, making it a smart investment in one of the most sought-after destinations on the Costa del Sol.

Don’t miss out on this opportunity to acquire a luxury villa in a prime location! Contact us for more information and to schedule a viewing.

Alternatives

1-7980e48d732b6fc85c14b43b94d2aa54.jpg

Te koop Herenhuis Costa Del Sol Torremolinos € 720.000,-

Price € 720.000,-
Plus d'information
1-7980e48d732b6fc85c14b43b94d2aa54.jpg

Te koop Herenhuis Costa Del Sol Nueva Andalucía € 699.000,-

Price € 699.000,-
Plus d'information
1-7980e48d732b6fc85c14b43b94d2aa54.jpg

Te koop Herenhuis Costa Del Sol The Golden Mile € 680.000,-

Price € 680.000,-
Plus d'information
1-7980e48d732b6fc85c14b43b94d2aa54.jpg

Te koop Herenhuis Costa Del Sol La Cala Golf € 675.000,-

Price € 675.000,-
Plus d'information
Disclaimer | Links
Casa Espana %lng_cookie_notice% %lng_close%
x